⬇ https://regional.knou.ac.kr/bbs/regional/2062/781381/artclView.do?layout=unknown
"서울지역대학 옥외 환경개선공사"와 관련하여
주출입구 폐쇄로 인한 보행자 동선이 아래와 같이 변경되어 안내 하오니
시설 이용에 참고하여 주시기 바랍니다.
시설 이용에 불편을 드려 죄송합니다.
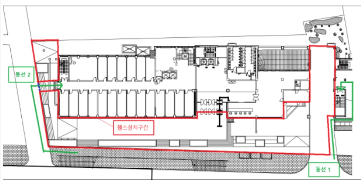
□ 보행자 동선
- 동선 1 : 2026. 1. 6.(화) ~ 2026. 1. 26.(월)
- 동선 2 : 2026. 1. 27.(화) ~ 2026. 2. 13.(금)
※ 지하주차장 사용 불가(2026. 2. 4.(수))
□ 관련도면

※ 현장 여건에 따라 공사 일정은 변동 될 수 있습니다.



로그인 후에 바로 열람 가능합니다 ^^